Ground Floor Unit 5, 58 Dacre Street, Mitchell

Contact Agent

1,262 m2 Floor Area
For Lease

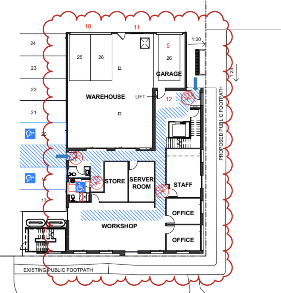
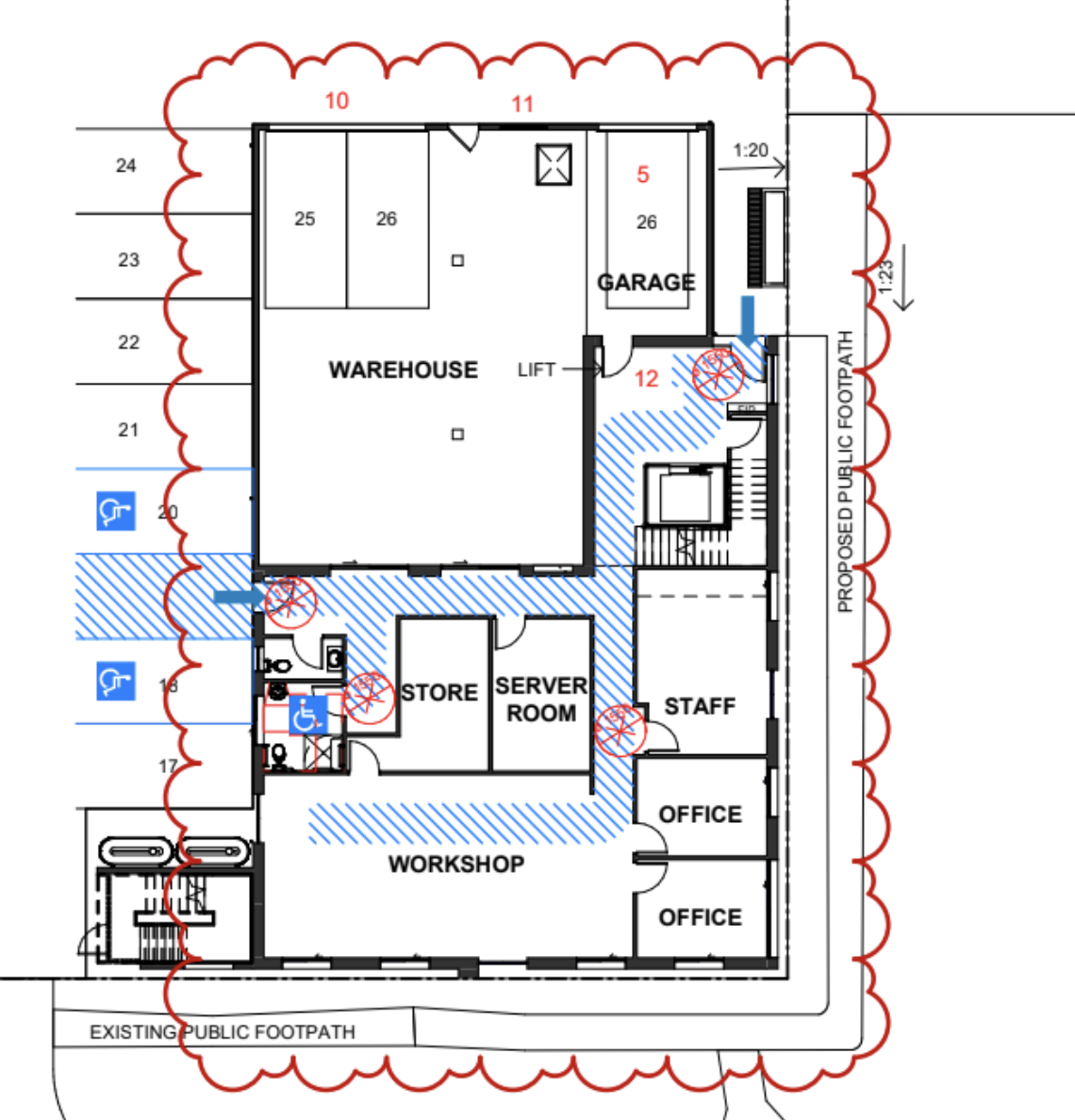
GROUND FLOOR WAREHOUSE AND OFFICE

Ground Floor Unit 5, 58 Dacre Street in Mitchell offers the opportunity to be amongst the most tightly held industrial market of north-Canberra. In this brand new development that has been built with functionality and professionalism at the forefront.

Suitable space for a multitude of uses, amongst a complex with existing professional light industrial tenants and owners.

Key Property Features:
* 1,261.25m2* on the ground floor
* Attached *293.49m2 warehouse with electric high-clearance roller door access
* Allocated complex car parking
* Air-conditioning throughout
* 3-phase power
* Private entry
* Private amenities: kitchenette with generous meals area, 2x accessible bathrooms, 1x shower
* Private offices
* Open-plan workspace with floor-to-ceiling windows and access to balcony on first floor
* Abundance of natural light
* Great signage potential
* Drive-thru access through secure complex

 

*Approximately

Details

Address Ground Floor Unit 5, 58 Dacre Street, Mitchell
Price Contact Agent
Property Type Commercial
Property ID 351
Commercial Listing Type Lease
Category Industrial/Warehouse, Showrooms/Bulky Goods, Retail
Office Area 968m2
Warehouse Area 294m2
Total Area 1,262 m2

Share

Piette Roberts photo

Piette Roberts

0414 944 244

Armin Kashan photo

Armin Kashan

0423 319 397